Notre bureau d'études

Notre bureau d'etude est à votre disposition pour répondre à tout type de projet dans le domaine énergétique. Notre savoir-faire s'applique aux domaines classiques ainsi qu'aux problématiques récentes requérant une certaine capacité d'innovation, comme par exemple l'optimisation énergétique de vos projets.
Que vous soyez clients privés, investisseurs ou donneurs d'ordre du domaine public, nous sommes à votre disposition pour vos projets.

Les points forts de nos prestations

 

Pour que votre chantier soit livré en temps et en heure, nos equipes coordonnent et contrôlent tous les facteurs juridiques, techniques et organisationnels pertinents pendant la phase de conception.

 

ETUDE DES BESOINS

  • Analyse et détermination des besoins
  • Estimations quantitatives et qualitatives des moyens à mettre en œuvre
  • Recommandations par rapport aux normes en vigueur
  • Audit et diagnostic des installations existantes

 

INTEGRATION A L'EQUIPE DE MAÎTRISE D’ŒUVRE :

  • Études d’Esquisses (ESQ)
  • Avant-Projet Sommaire (APS)
  • Avant-Projet Définitif (APD)
  • Étude de Projet (PRO)
  • Dossiers de Consultation des Entreprises (DCE)
  • Assistance au Maître d’Ouvrage pour la passation des Contrats de Travaux (ACT)
  • Visa des études d’exécution (VISA)
  • Direction de l’Exécution des contrats de Travaux (DET)
  • Assistance aux Opérations de Réception (AOR)
  • Dossier des Ouvrages Exécutés (DOE)

 

ASSISTANCE À MAÎTRISE D’OUVRAGE :

  • Suivi, planification et coordination des travaux après Synthèse (OPC).

Aperçu de nos autres prestations

RÉALISATION DES CALCULS RÉGLEMENTAIRES :

  • RÉGLEMENTATION THERMIQUE EXISTANT, 2005 ET 2012 :
    • Saisie des bâtiments existants et optimisation des résultats.
    • Réalisation d’études thermiques réglementaires et avec performances énergétiques : HPE, THPE, HPE EnR 2005, THPE EnR 2005, BBC 2005…
    • Calcul du Bbio, Cep, Tic, attestation de prise en compte de la RT, attestation finale.
    • Etudes et optimisation des résultats.
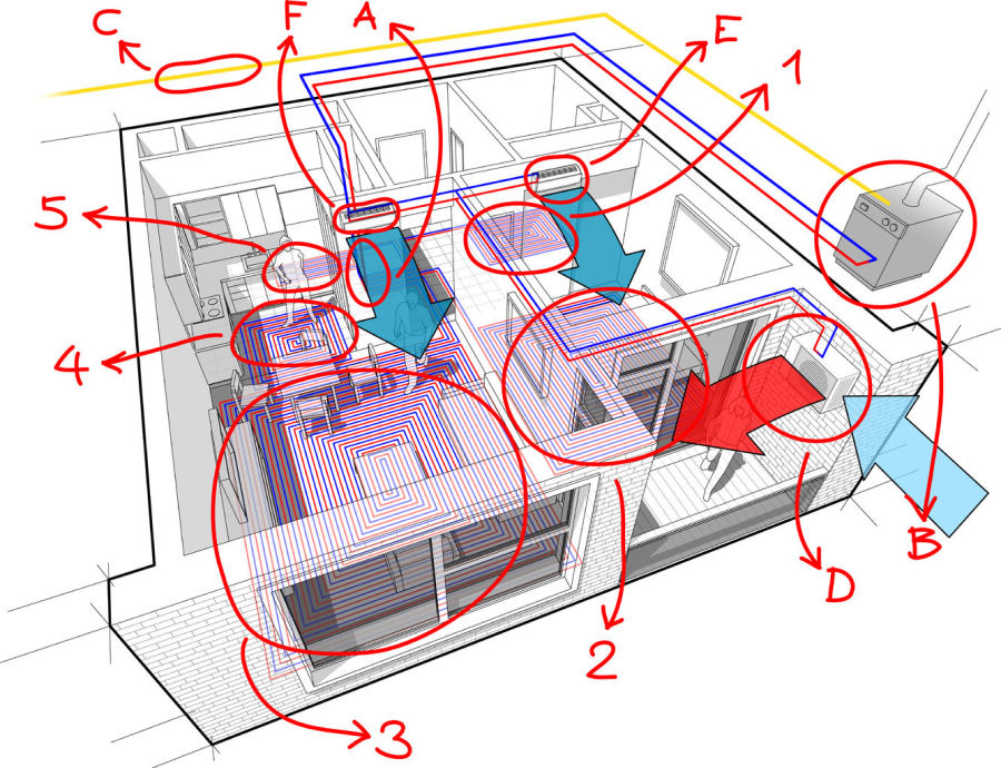
  • BILANS THERMIQUES :
    • Réalisation de calculs d’apports et de déperditions pour tous types de bâtiments.
    • Détermination des puissances de chauffage et de climatisation à installer.

 

 

CHIFFRAGES DES LOTS TECHNIQUES :

  • Métrés, quantitatifs, études de prix de tous les lots fluides (chauffage, ventilation, climatisation, plomberie, désenfumage, fluide médicaux)

 

Vous souhaitez en savoir plus sur nos prestations ?

N'hésitez pas à nous appeler au 0689183132  ou contactez-nous directement grâce à notre formulaire de contact.


Appel

Email